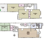
お問い合わせ候補一覧
- 住所
- 神奈川県横浜市西区境之谷 101-17
- アクセス
- 京浜急行電鉄本線 黄金町駅 から 徒歩15分
- 価格 3,590.0万円
- 間取り 4LDK
- 土地面積: 100.11m 2 ( 30.28坪 )
- 建物面積: 94.54m 2 ( 28.59坪 )
- 完成年月: 2002年08月
お問い合わせフォーム
下記のフォームに必要項目、お問い合わせ内容を入力後、プライバシーポリシーをご確認ご同意のうえ送信ボタンを押して下さい。






